260330902
260330862
260330886
260330884
260330890
260330900
260330898
260330896
260330892
260330888
260330894
260330860
260330848
260330854
260330858
260330856
260330852
260330850
260330864
260330866
260330868
260330870
260330872
260330878
260330874
260330876
260330880
260330846
260330882
260831408
260831494
260831514
260831614
260831648
260831670
260831978

Details verbergen

Details weergeven

Woning

Oude Kerkstraat 54

6412 XJ HEERLEN

€ 289.000

4 Slaapkamers

142 m2 woonopp.

191 m2 perceelopp.

Woning

Oude Kerkstraat 54

Bent u toe aan de volgende stap in uw wooncarrière? Zoekt u meer ruimte voor uw gezin, uw werk aan huis of gewoon voor uzelf? Dan is deze royale stadswoning absoluut het bekijken waard. Met maar liefst vier en de mogelijkheid tot vijf volwaardige slaapkamers biedt deze woning alle flexibiliteit die het moderne leven vraagt, nu én in de toekomst. (Bel 0654298981 voor een vrijblijvende bezichtiging.)

Deze tussenwoning is gelegen in een rustige straat, op korte afstand van het centrum van Heerlen. Een prettige woonomgeving waar rust en stedelijke voorzieningen hand in hand gaan. Of u nu een groot gezin heeft, thuiswerkt, hobby’s beoefent of extra kamers wilt voor logees: hier vindt u de ruimte om het helemaal naar eigen wens in te richten.

De ligging is bijzonder gunstig. Op loop- en fietsafstand bevinden zich onder andere scholen, winkels, supermarkten, horeca en diverse groen- en speelvoorzieningen. Ook het Parkstad Limburg Theater, het Maankwartier en het NS-station Heerlen zijn snel en eenvoudig bereikbaar. Daarnaast liggen belangrijke uitvalswegen op korte afstand, wat zorgt voor een uitstekende bereikbaarheid.
Wat deze woning extra aantrekkelijk maakt, is het gevoel van rust en ruimte. Een plek waar u zich snel thuis zult voelen, met alles wat de stad extra te bieden heeft binnen handbereik.

Begane grond
Entree met meterkast en hal. Bij beiden is de authentieke terrazzo vloer zichtbaar gemaakt. Authentieke trappartij naar de twee verdiepingen. Kelderberging met tegelvloer en toegang tot de kruipruimte. De kruipruimte wordt in voorjaar 2026 door gemeente na-geïsoleerd. Het volledig betegelde toilet is voorzien van een hangcloset, fontein, mechanische ventilatie en inbouwspots. Vanuit de hal ook toegang tot de leefkeuken en de woonkamer, waar de klassieke houtkachel direct zorgt voor sfeer en warmte.
De woonkamer met lichte siergrindvloer staat via een schuifpui in verbinding met de ruime, leefkeuken met dezelfde lichte siergrindvloer. De keuken heeft een standaard vol houten aanbouwkeuken en beschikt over ingebouwde apparatuur en een lichtkoepel. Hier zijn tevens de aansluitingen voor witgoedapparatuur en de cv-ketel. Goede geluidsisolatie én warmte isolatie zorgen voor een aangenaam leefklimaat.
De keukentafel is de plek waar waar men blijft zitten, waar de tijd soms even wordt vergeten en waar gesprekken ontstaan. Of het nu gaat over de volgende vakantiebestemming, de organisatie van een verjaardag, cadeautjes voor Sinterklaas of Kerst, of gewoon over hoe de week is geweest: een keuken als deze is het hart van het huis. Een plek waar niet alleen het gezin graag samenkomt, maar waar ook familie en vrienden zich direct welkom voelen.
Vanuit de keuken via een schuifpui en een deur toegang tot de serre, uitgevoerd met kunststof panelen. Het dak van de serre is elektrisch bedienbaar. Aansluitend een hobbyruimte en een buitenberging, wat zorgt voor veel praktische
gebruiksmogelijkheden.

Hart van het huis: Sfeervolle open haard
De houtkachel is veel meer dan alleen een warmtebron. Het knisperende hout, de authentieke vlammen en de heerlijke geur van brandend hout creëren direct een gevoel van huiselijkheid en comfort. Na een drukke werkdag, tijdens een gezellig samenzijn met vrienden of op een luie zondagmiddag: bij deze houtkachel geniet u van pure ontspanning en gezelligheid.
Dit betekent niet alleen een aangename temperatuur op de begane grond, maar ook een besparing op de steeds stijgende gaskosten. Zo combineert deze kachel gezelligheid, comfort en efficiëntie.

Eerste verdieping
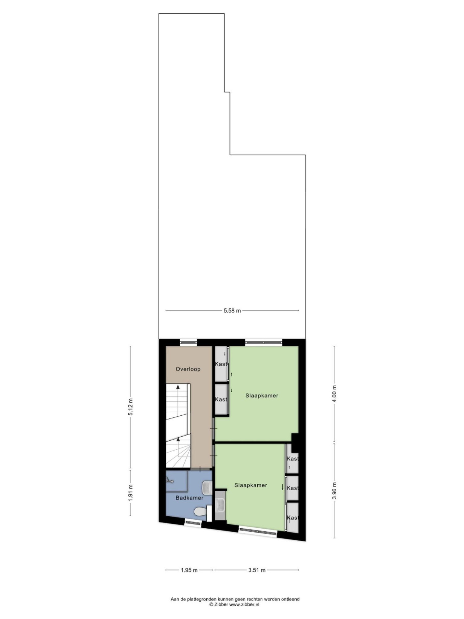
Vanaf de eerste overloop met authentieke plankenvloer heeft u toegang tot twee royale slaapkamers en de badkamer. Beide slaapkamers hebben een laminaatvloer en een praktische wastafel. Beide kamers beschikken over inbouwkasten, waardoor u veel bergruimte heeft.
De badkamer, volledig betegeld en voorzien van daglichttoetreding, is van alle gemakken voorzien: een inloopdouche met glazen douchescherm, een wastafel met meubel, een zwevend toilet en een grote plaatradiator. Een sfeervolle en functionele ruimte om elke dag te beginnen en af te sluiten.

Tweede verdieping
Overloop met plankenvloer, muurkast en inbouwkast. De twee slaapkamers aan de voorzijde hebben een dakkapel en een wastafel, ideaal voor een gezin. Beide slaapkamers beschikken over ruime inbouwkasten voor optimale opbergruimte.
De kleinste kamer op deze verdieping is voorzien van een dakraam én een ruime berging en de mogelijkheid er een vijfde slaapkamer van te maken.
Zo biedt de tweede verdieping volop flexibiliteit voor gezinsgebruik, werken aan huis of hobby’s.

Besloten achtertuin
Stap de deels beklinkerde achtertuin met buitenberging in en ervaar direct de rust en gezelligheid die deze tuin te bieden heeft. Aan weerszijden zorgen groene borders met allerlei bloeiende planten en o.a. appels, pruimen, kiwi en kersen voor een natuurlijke en eetbare omlijsting, waardoor de tuin een gevoel van privacy en geborgenheid uitstraalt. Een vijver met zacht kabbelende waterval trekt meteen de aandacht en creëert een serene sfeer om elke dag van te genieten.
Deze tuin nodigt uit om samen te zijn: een ontbijt in de ochtendzon, een gezellige lunch met vrienden, een borrel in de avond of gewoon een rustig moment met een goed boek. Dankzij de onderhoudsvriendelijke bestrating is er volop ruimte voor een grote tafel met stoelen, een loungeset of plek voor spelende kinderen.
Of u nu wilt ontspannen, genieten van het groen, of gezellige momenten wilt beleven met familie en vrienden: deze tuin biedt de perfecte combinatie van sfeer, comfort en gezelligheid. In combinatie met de serre is het een buitenruimte waar herinneringen gemaakt kunnen worden en waar iedereen zich thuis voelt.

Algemeen
Even op een rijtje:
Geheel voorzien van dubbel glas in kunststof kozijnen (renovatieprofiel);
• Nagenoeg alle ramen op 1e en 2e verdieping voorzien van uitneembare horren;
• Grotendeels voorzien van rolluiken, rolluik bij voordeur en raam met tijdschakelaar;
• Natuursteenstrips op diverse muren door gehele huis;
• Alle platte daken in 2025 geheel vernieuwd;
• Containerlift;
• Rookmelders;
• CV ketel Nefit HR combi, 2022, huurtoestel € 45 per maand;
• Houten vloeren;
• Vrij parkeren;
• Bouwjaar 1929;
• Woonoppervlakte wonen: 142 m2;
• Perceelgrootte: 191 m2;
• Inhoud 577 m3 (exclusief externe bergruimtes);
• Energielabel D.

Kenmerken

Bouw

Soort woonhuis

Tussenwoning, Eengezinswoning

Soort bouw

Bestaande bouw

Bouwjaar

Soort dak

Pannen

Oppervlakten

Woonoppervlakte

142 m2

Perceeloppervlakte

191 m2

Inhoud

577 m2

Indeling

Aantal kamers

9 (4 Slaapkamers)

Aantal badkamers

1 Badkamer

Badkamervoorziening

Douche, Toilet, Wastafel, Wastafelmeubel

Aantal woonlagen

4 woonlagen

Voorzieningen

Dakraam, Natuurlijke ventilatie, , Rookkanaal, Schuifpui

Informatie aanvragen

Interesse in Oude Kerkstraat 54

paragraph bg